- Sale
- Three bedroom apartment
- CROATIA - 4 rooms apartments near a nice beach - SUKOŠAN
CROATIA - 4 rooms apartments near a nice beach - SUKOŠAN
Show gallery (14photos)
RB26-2659-50,
AMAXADES REALITY real estate agency mediates the sale of beautiful new apartments with an excellent location near the newly renovated beach in the town of SUKOŠAN.
A total of 10 apartments are for sale located in two identical buildings. Each house has four 3-room apartments and one 4-room apartment (S5) with a roof terrace. The first house is 70 m from the sea and the second 100 m from the sea.
Each apartment has one parking space. Apartments with a roof terrace have two parking spaces. Almost all apartments have a sea view.
The apartments are built with an emphasis on the quality of the materials used with a modern design. The apartments have underfloor heating and are suitable for year-round living and for tourist rental.
Apartment S1 - ground floor. Area 61.06 m2 + terrace 12.30 m2 + garden 48 m2.
The apartment has an entrance hall, two bedrooms, a bathroom with shower and toilet, a second separate toilet / laundry room and a living room with a kitchenette and a dining room with access to the terrace.
Apartment S2 – ground floor. Area 64.22 m2 + terrace 12.80 m2 + garden 74 m2.
The apartment has an entrance hall, two bedrooms, a bathroom with shower and toilet, a laundry room / utility room and a living room with a kitchenette and a dining room with access to the terrace.
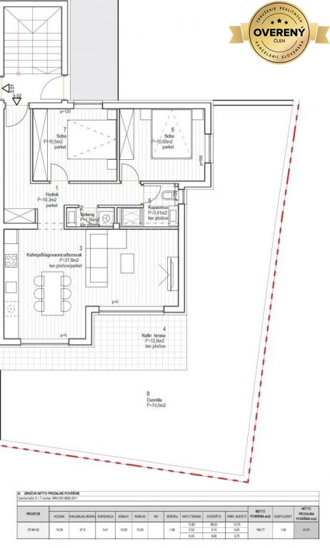
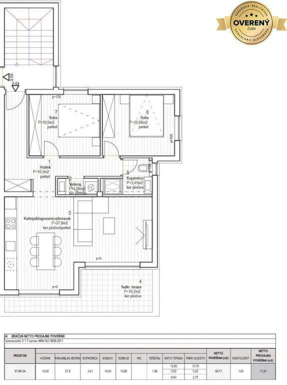
Apartment S3 – 1st floor. Area 61.06 m2 + terrace 10.1 m2.
The apartment has an entrance hall, two bedrooms, a bathroom with a shower and toilet, a second separate toilet / laundry room and a living room with a kitchenette and a dining room with access to the terrace.
Apartment S4 – 1st floor. Area 64.22 m2 + terrace 12.80 m2.
The apartment has an entrance hall, two bedrooms, a bathroom with a shower and toilet, a laundry room / utility room and a living room with a kitchenette and a dining room with access to the terrace.
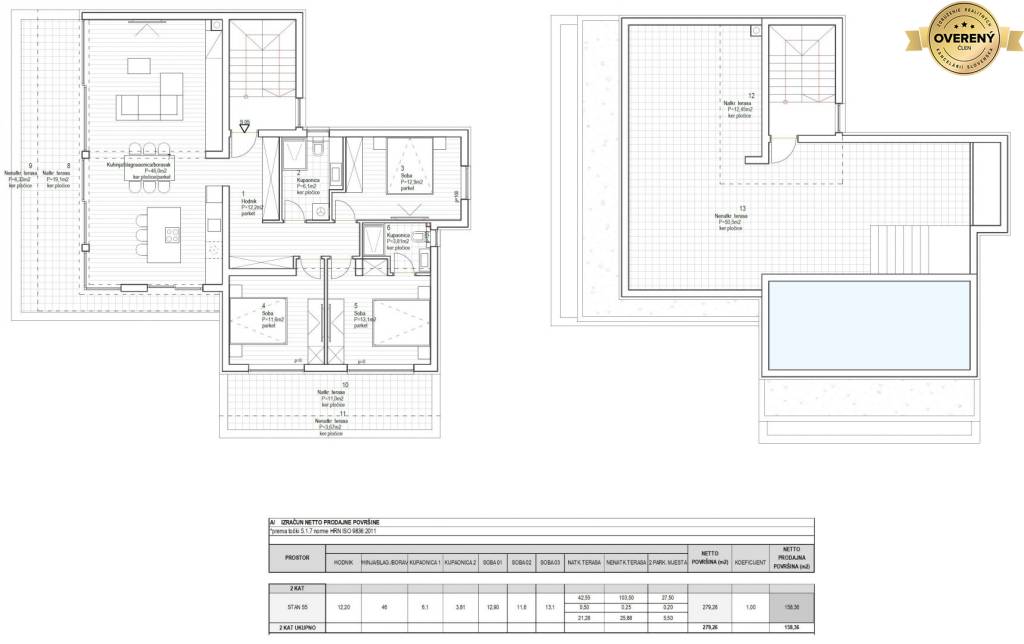
Apartment S5 – 2nd floor. This apartment has 4 rooms. Its area is 105.71 m2 + terrace accessible from the living room 25.43 m2 + second terrace accessible from two bedrooms 14.67 m2 + roof terrace with a swimming pool 105.95 m2.
The apartment has an entrance hall, three bedrooms, two bathrooms, one of which is part of one bedroom and a living room with a kitchenette and dining room.
Utilities: water, electricity, sewage treatment plant
Sales prices:
Apartment S1 = 364,000,- EUR
Apartment S2 = 368,000,- EUR
Apartment S3 = 315,000,- EUR
Apartment S4 = 324,000,- EUR
Apartment S5 = 792,000,- EUR
+ the buyer pays real estate and legal services including legal documents, translation services and notary fees in the amount of 3% of the purchase price.
More properties for sale in Croatia can be found on our website.
If you are interested in viewing the property, please contact us:
+421.911.201.211, +385.99.8431.210,
amaxades.reality@gmail.com
Listing summary
2/last floor
2
4
251.76 m²
105.71 m²
personal property
active
separable
yes
own - electric
146 m²
private
brick
yes
outdoor
yes
no
plastic
+421 911 201 211
Croatia
Sukošan
Sukošan
personal property
Three bedroom apartment - New building
Sale
- 13. January 2026 7:55 PM
- Contact the agent
- Send this listing per email
- Arrange the property visit
- Print this listing
Property location
For more information please contact
AMAXADES REALITY
Real Estate Agent


Phone: +421 911 201 211
E-mail: amaxades.reality@gmail.com
AMAXADES s.r.o.
Pivovarská 7
NITRA, SLOVAKIA,
SK-94901
Phone: +421 911 201 211, +421.911.400.211
Cell phone: +421 911 201 211, +421.911.400.211, +385.99.8431.210,
E-mail: amaxades.reality@gmail.com
Website: www.amaxades-reality.sk
Three bedroom apartment / Sukošan / Three bedroom apartment Sukošan Sale



















